Courtesy of Ryan Froese/RE/MAX Sabre Realty Group
MLS® # R3111096
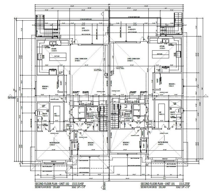
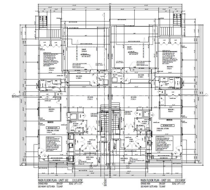
Build without delay - Development permit approved and plans for a 4 plex (Duplexes with Suites) are awaiting your HPO number. This 8,625 Sq Ft lot with 70 Ft frontage is cleared and ready to build. Major site upgrades are already complete, including a new front curb, sidewalk, and fully paved rear lane. Located across from the park, steps to an elementary and a few more steps to other levels of school, shopping, transit, parks, and the PoCo Trail, this site is the perfect location for young families. A rare...