Courtesy of Shirley Chan/Macdonald Realty

1801 1277 HORNBY STREET, Condo for sale in Vancouver West Vancouver , BC , V6Z 1W2

 MLS® # R3073239

1 bedrooms

1 bathrooms

505 sqft

Sign up to View

Days on Market

Clubhouse Exercise Centre Concierge Trash Maintenance Grounds Heat Hot Water Management Recreation Facilities Snow Removal

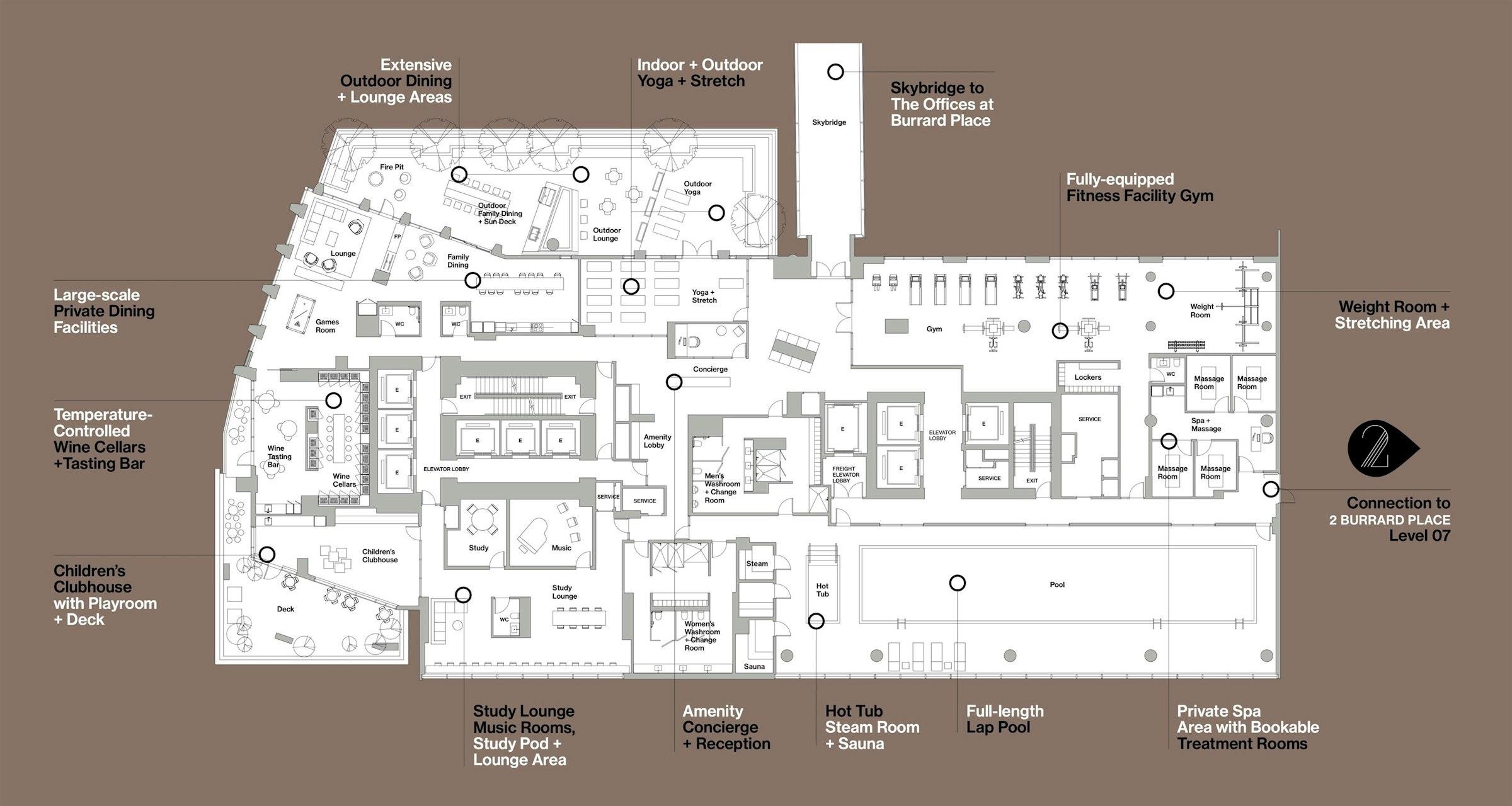
Experience unmatched luxury at 2 Burrard Place. This 1 bed + den home includes 1 parking stall and 1 bike locker. Enjoy the view of city skyline, and North Shore mountains from your private balcony. Interiors feature air conditioning, wide-plank hardwood floors, MITON Italian kitchen with GAGGENAU appliances, integrated KICO wardrobes, and a spa-inspired bathroom with heated floors and CIELO fixtures. Residents have access to 30,000 sqft of Club One amenities, including fitness centre, indoor pool, spa, lou...

Read More

Essential Information

  • MLS® #
    R3073239
  • Full Baths
    1
  • Year Built
    2026
  • Property Type
    Multi Family
    Residential Attached
  • Building Type
    Apartment/Condo
  • MLS® #
    R3073239
  • Full Baths
    1
  • Year Built
    2026
  • Property Type
    Multi Family, Residential Attached
  • Building Type
    Apartment/Condo
  • MLS® #
    R3073239
  • Full Baths
    1
  • Year Built
    2026
  • Property Type
    Multi Family
    Residential Attached
  • Building Type
    Apartment/Condo

Community Information

  • Area
    Vancouver West
  • Sub-Area/Community
    Downtown VW
  • Postal Code
    V6Z 1W2
  • Area
    Vancouver West
  • Sub-Area/Community
    Downtown VW
  • Postal Code
    V6Z 1W2
  • Area
    Vancouver West
  • Sub-Area/Community
    Downtown VW
  • Postal Code
    V6Z 1W2

Services & Amenities

  • Amenities
    Clubhouse
    Exercise Centre
    Concierge
    Trash
    Maintenance Grounds
    Heat
    Hot Water
    Management
    Recreation Facilities
    Snow Removal
  • Amenities
    Clubhouse, Exercise Centre, Concierge, Trash, Maintenance Grounds, Heat, Hot Water, Management, Recreation Facilities, Snow Removal
  • Amenities
    Clubhouse
    Exercise Centre
    Concierge
    Trash
    Maintenance Grounds
    Heat
    Hot Water
    Management
    Recreation Facilities
    Snow Removal

Interior

  • Basement
    false
  • Storeys
    1
  • Floor Area Fin - Main Flr
    505
  • Floor Area - Grand Total
    505
  • Basement
    false
  • Storeys
    1
  • Floor Area Fin - Main Flr
    505
  • Floor Area - Grand Total
    505
  • Basement
    false
  • Storeys
    1
  • Floor Area Fin - Main Flr
    505
  • Floor Area - Grand Total
    505

Additional Info

  • Strata Maintenance Fees
    513.29
  • Title
    Freehold Strata
  • Site Influences
    Central Location
    Marina Nearby
    Recreation Nearby
  • Storeys in Building
    36
  • Strata Maintenance Fees
    513.29
  • Title
    Freehold Strata
  • Site Influences
    Central Location, Marina Nearby, Recreation Nearby
  • Storeys in Building
    36
  • Strata Maintenance Fees
    513.29
  • Title
    Freehold Strata
  • Site Influences
    Central Location
    Marina Nearby
    Recreation Nearby
  • Storeys in Building
    36

$902,895

1801 1277 HORNBY STREET

Schedule Tour
Contact Agent

$4112/month
Est. Monthly Payment
$
$
%
Learn More