Courtesy of Imran Ali PREC*/eXp Realty
MLS® # R3079032
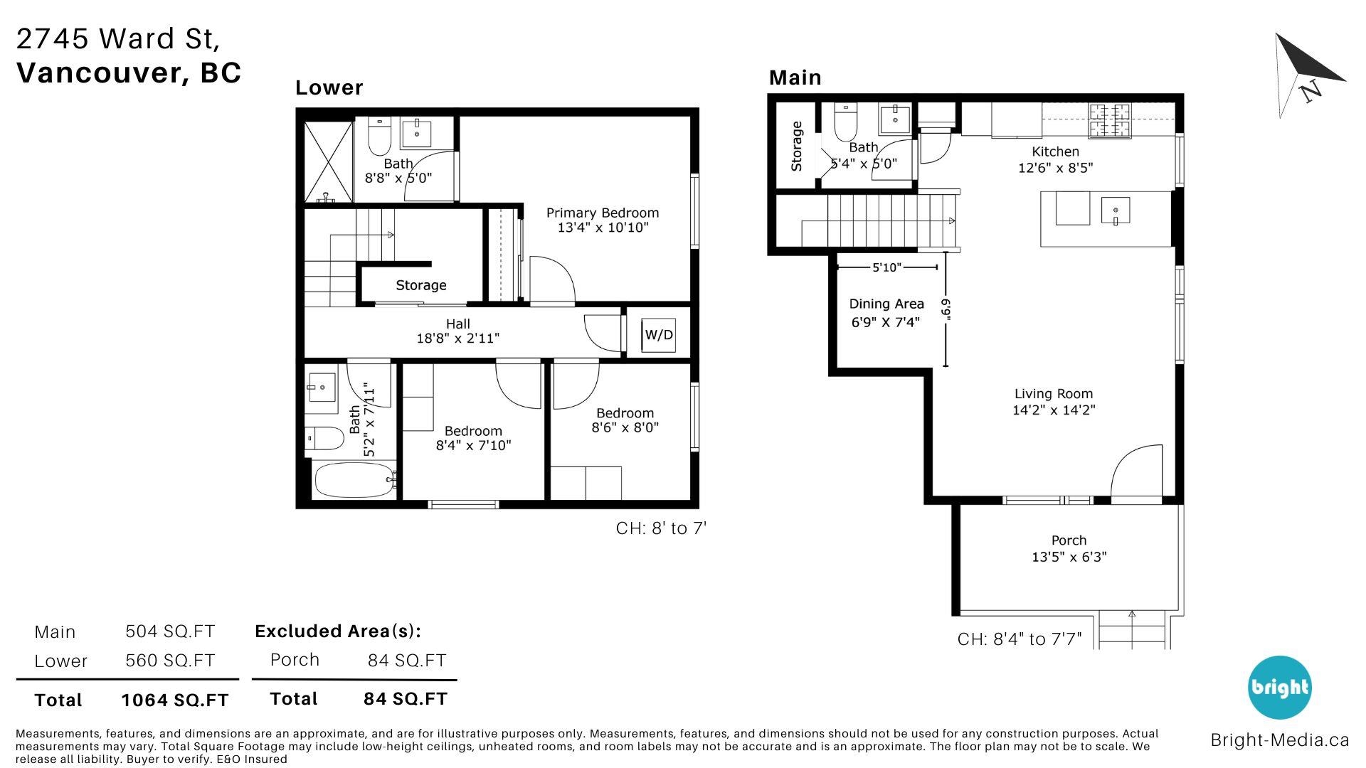
Welcome to this modern 2-storey townhouse in the heart of Collingwood! Offering 1,066 sq.ft. of thoughtfully designed living space, this 3-bedroom, 2.5-bath home features a bright, open-concept layout perfectly suited for today’s lifestyle. The spacious living and dining areas connect seamlessly to a sleek contemporary kitchen, while your private outdoor patio provides an ideal setting for relaxing or entertaining. Upstairs, you’ll find three well-proportioned bedrooms, including a primary suite with ensuit...